An official website of the United States government
Here's how you know
Official websites use .mil
A
.mil
website belongs to an official U.S. Department of Defense organization in the United States.
Secure .mil websites use HTTPS
A
lock (
lock
)
or
https://
means you’ve safely connected to the .mil website. Share sensitive information only on official, secure websites.
Skip to main content (Press Enter).
Toggle navigation
Joint Base Charleston
Joint Base Charleston
Search Joint Base Charleston:
Search
Search
Search Joint Base Charleston:
Search
Home
News
Commentaries
Features
Photos
Art
Video
Press Releases
About Us
Biographies
Fact Sheets
Freedom Of Information Act
Facilities
JB CHS Snapshot
Units
628th Air Base Wing
628th Mission Support Group
628th Medical Group
628th Air Base Wing Staff Agencies
Staff Judge Advocate (Legal Office)
437th Airlift Wing
628 ABW Public Affairs
JB CHS Honor Guard
Mission Partners
Contact Us
Frequently Asked Questions
Disclaimer
Commander's Action Line
Welcome to Charleston
Hurricane Preparation
Helping Agencies
New to JBC
Retirees
Military Families
Resident Advocate
Passenger Terminal Information
We Care
Sexual Misconduct Disciplinary Actions
Victims' Counsel
Home Life
Victim Support Services
Mental Wellness
Financial Wellness
Workplace
Physical Health
Library
Air Installations Compatible Use Zones Study March 2019
Flight Safety Information
Mid-Air Collision Avoidance
Bird Aircraft Strike (BASH)
Joint Base Charleston Drone Policy
Water Quality Report
JB CHS - AFGE Local 1869 Collective Bargaining Agreement
JBC Rideshare Policy
Honorary Commander Program
Home
:
News
:
Photos
ImageGallery
Search
Search
All Images
All Images
Aircraft
Airmen in Action
Community
Official Photos
Other
Sailors in Action
Ships
Sports & Fitness
Team Charleston
Upload Date
Upload Date
Photo Date
Title
120227-F-NK396-001.JPG
Photo By:
Related Stories:
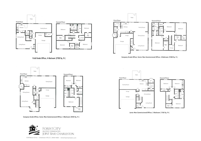
Construction on military housing, "on schedule"
Feb 27, 2012
(Photo courtesy of Forest City Communities)
DOWNLOAD PHOTO
(1.39 MB)
This photograph is considered public domain and has been cleared for release. If you would like to republish please give the photographer appropriate credit. Further, any commercial or non-commercial use of this photograph or any other DoD image must be made in compliance with guidance found at
http://www.dimoc.mil/resources/limitations.html
, which pertains to intellectual property restrictions (e.g., copyright and trademark, including the use of official emblems, insignia, names and slogans), warnings regarding use of images of identifiable personnel, appearance of endorsement, and related matters.
Back to Gallery